

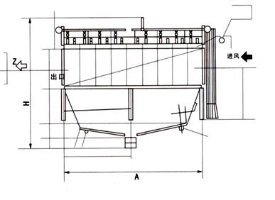
東捷公司PPC氣箱式脈沖布袋除塵器構造和工作原理:PPC氣箱式脈沖布袋除塵器由殼體(一般5mm的碳鋼板焊接而成)、支架和脈沖清灰系統、灰斗、排灰裝置等部件組成。當含塵氣體從進風口進入PPC氣箱式脈沖布袋除塵器后,首先碰到進風口中間的斜隔板,氣流便轉向流入灰斗,同時氣流速度變慢,由于慣性作用,使氣體中粗顆粒粉塵直接落入灰斗,起到預收塵的作用,進入灰斗的氣流后折而向上通過內部裝有金屬除塵骨架的除塵布袋,粉塵被捕集在濾袋的外表面,凈化后的氣體進入除塵布袋室上部的清潔室,匯集到出風管而排出。排出的凈空氣達到 要求的排放標準,過濾效率達,PPC氣箱式脈沖布袋除塵器是目前國內除塵效率 高的除塵設備。
PPC氣箱式脈沖布袋除塵器產品共有33種規格,每室的袋有32、64、96、128袋四種,除塵布袋長度有2450mm和3060mm兩種,收塵效率可達99.9%以上,凈化后氣體的含塵濃度小于100mg/m3(標)本系列收塵器如用于寒冷地區,當室外采暖計算溫度≤-25℃時,要設熱裝置。PPC氣箱式脈沖布袋除塵器的特點是:采用分室輪流進行清灰,即所謂離線清灰。當某一室進行噴吹清灰時,過濾氣流被切斷,避免了噴吹清灰產生粉塵二次飛揚。所以PPC氣箱式脈沖布袋除塵器能捕集含塵達1000g/m3的氣體,PPC氣箱式脈沖布袋除塵器是從美國富東公司引進的一項新產品。本系列產品可廣泛用于水泥廠的破碎安裝、庫頂、熟冷卻機和磨機等收系統。型號說明如下:
FMQDXX-a×b
F:氣相式
M:脈沖
Q:收塵器
D:螺旋輸送機 空氣輸送斜槽
XX:每一室的濾袋數
a:每列的室數
b:列數(單列不標注)
PPC氣箱式脈沖布袋除塵器技術性能如下
| 參數 | 處理風量(m3/h) | 過濾風速(m/min) | 過濾面積(m2) | 濾袋數(個) | 阻力(Pa) | 含塵濃度(g/m3) | 保溫層面積(m2) | 重量(kg) | |
| 型號 | |||||||||
| 32-3 | 6900 | 1.2-2.0 | 93 | 96 | 1470-1770 | <1000 | 26.5 | 2.880 | |
| 32-4 | 8930 | 124 | 128 | 34 | 4.080 | ||||
| 32-5 | 11160 | 155 | 160 | 41 | 5.280 | ||||
| 32-6 | 13390 | 186 | 192 | 48.5 | 6.480 | ||||
| 64-4 | 17800 | 248 | 256 | 70 | 7.280 | ||||
| 64-5 | 22300 | 310 | 320 | 94 | 9.960 | ||||
| 64-6 | 26700 | 372 | 384 | 118 | 11.640 | ||||
| 64-7 | 31200 | 434 | 448 | 142 | 13.320 | ||||
| 64-8 | 35700 | 496 | 512 | 166 | 15.000 | ||||
| 96-4 | 26800 | 372 | 384 | <1300 | 110 | 10452 | |||
| 96-5 | 33400 | 465 | 480 | 120 | 12120 | ||||
| 96-6 | 40100 | 557 | 576 | 130 | 14880 | ||||
| 96-7 | 46800 | 650 | 672 | 140 | 16920 | ||||
| 96-8 | 53510 | 744 | 768 | 150 | 19810 | ||||
| 96-9 | 60100 | 836 | 864 | 160 | 21240 | ||||
| 96-2×5 | 66900 | 929 | 960 | 175 | 25200 | ||||
| 96-2×6 | 80700 | 1121 | 1152 | 210 | 30240 | ||||
| 96-2×7 | 94100 | 1308 | 1344 | 245 | 35280 | ||||
| 96-2×8 | 107600 | 1494 | 1536 | 280 | 40320 | ||||
| 96-2×9 | 121000 | 1681 | 1728 | 315 | 45360 | ||||
| 96-2×10 | 134500 | 1868 | 1920 | 350 | 50400 | ||||
| 128-6 | 67300 | 935 | 768 | 125 | 24120 | ||||
| 128-9 | 100900 | 1402 | 1152 | 196 | 31680 | ||||
| 128-10 | 112100 | 1558 | 1280 | 205 | 34680 | ||||
| 128-2×6 | 34600 | 1869 | 1536 | 323 | 43920 | ||||
| 128-2×7 | 15700 | 2181 | 1792 | 247 | 52680 | ||||
| 128-2×8 | 179400 | 2492 | 2084 | 262 | 60000 | ||||
| 128-2×9 | 201900 | 2804 | 2304 | 277 | 66480 | ||||
| 128-2×10 | 224300 | 3115 | 2561 | 292 | 72000 | ||||
| 128-2×11 | 247600 | 3427 | 2856 | 307 | 78480 | ||||
| 128-2×12 | 269100 | 3728 | 3072 | 322 | 96400 | ||||
| 128-2×13 | 291600 | 4050 | 3328 | 337 | 93600 | ||||
| 128-2×14 | 314000 | 4361 | 3584 | 252 | 100800 | ||||


PPC氣箱式脈沖布袋除塵器風量選擇、PPC氣箱式脈沖布袋除塵器選型、PPC氣箱式脈沖布袋除塵器設計制作等,致電東捷公司服務熱線:0317-5669112
![]() |
滄公備:13090002006081
|
![]() |